Mission : Complète
Lieu : Les Pavillons-sous-bois (93)
Date : 2008
Budget : 135 000 euros HT
Surface : 88 + 65m²
Bureau d'étude : CBCO (bois)
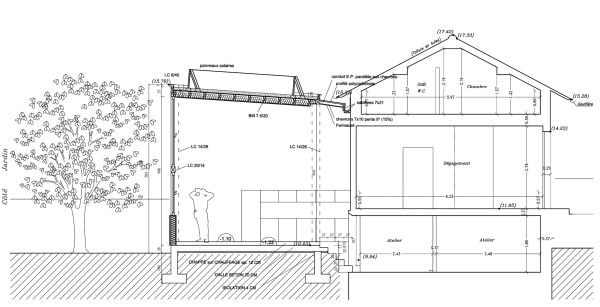
Ce joli pavillon de l'Est parisien bénéficie d'un vaste jardin. Mais le rez-de-chaussée étant surélevé, les occupants en profitaient peu et par ailleurs, ils manquaient de place.
L'extension a permis de créer un lien fort avec l'extérieur par une vaste façade vitrée, offrant le bel espace de réception souhaité. La baie s'ouvre entièrement sur le jardin, et les châssis hauts sur la façade opposée permettent une ventilation naturelle en été. Au-dessus de la partie séjour se niche la chambre des parents, suspendue au-dessus du jardin.
La conception s'est faite dans une démarche écologique et durable, poussée aussi loin que le permettait le budget : utilisation du bois non traité pour la structure (Douglas), isolation en laine de bois (14 cm dans les murs et 20 cm en toiture), toit végétalisé, chauffage solaire passif par les grandes ouvertures au sud-est, protégées des surchauffes en été par la végétation naturelle, plancher chauffant basse température. Menuiseries très performantes en mélèze. Le traitement du sol et les peintures réalisés avec des produits naturels sans solvants chimiques ni formaldéhyde. Enfin, des panneaux solaires thermiques sont prévus pour chauffer l'eau chaude sanitaire.
