Mission : Projet (sans suivi de chantier)
Lieu : Les Lilas (93)
Livraison : 2017
Montant des travaux :
Surface : 90 m² surface de plancher, dont 77 m² rénovation et 13m² extension
BET structure: Buchet
Entreprise: Romadeco (clos et couvert de la surélévation, étanchéité terrasse, toitures zinc, ITE façades et menuiseries).
Autres lots: auto-construction
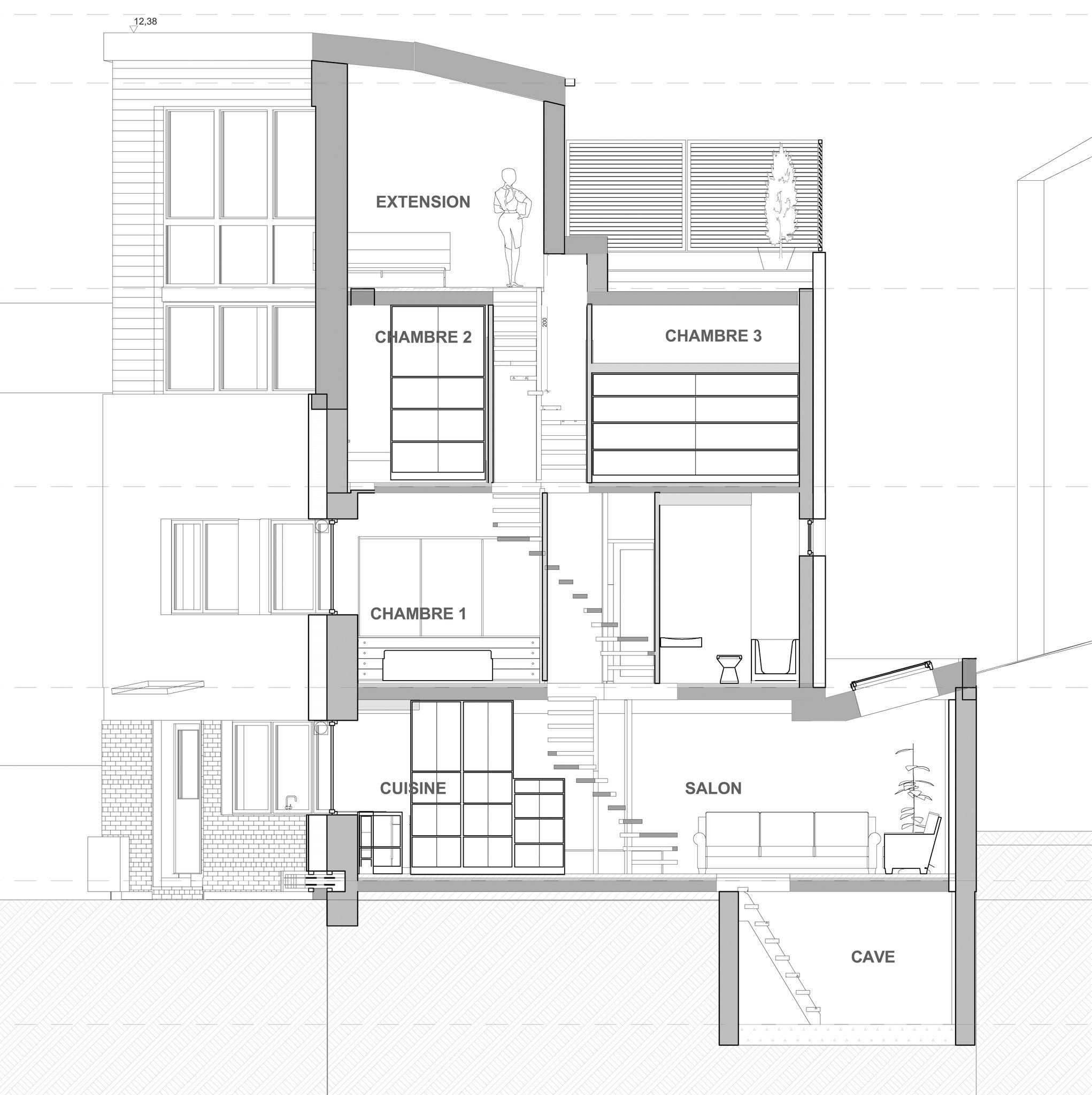
Petit objet urbain, maison-en-ville
En première couronne parisienne, sur une avenue où poussent des immeubles de 6 étages, reste un alignement de maisons. Sur une parcelle de 3,50m de large, une maison à l’allure années 1970 qui se révélera être la surélévation illégale d’une maison des années 1940, à la surprise des acquéreurs, une jeune famille grandissante. La nouvelle surélévation sera donc l’occasion de légaliser la construction précédente. Soumise à plusieurs contraintes de vues par rapport aux parcelles mitoyennes, elle profitera néanmoins d’une terrasse végétalisée à niveau. La légèreté de la construction bois permettra de ne pas surcharger la bâtisse existante, dont la dégradation de la structure à cause d’infiltrations d’eau est traitée. Une rénovation à tous les niveaux permettra, grâce à un positionnement astucieux d’un escalier fin, d’optimiser la distribution, les réseaux, le rangement et l’éclairage naturel, notamment en fond de parcelle. Les façades sont isolées, les menuiseries remplacées, le chauffage se fait désormais par le sol et une ventilation double flux profite de l’optimisation de l’étanchéité à l’air. Dans l'attente des brise-soleil orientables qui viendront la compléter, la façade sur rue jouit d'un ensoleillement au sud.
